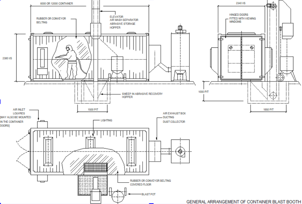
Shot Blasting
We offer shot blast booths that can accommodate the following:
- Silica Sand
- Silicon Dioxide
- Soda
- Steel Grit
- Glass Bead
Bendet’s shot blasting plants have several advantages from environmental advantages to bonding advantages. Bendet’s shot blasting plants are either automated inline, automated batch shot blast booths or manned shot blast booths.
Bendet’s shot blasting booth advantages:
- Surface preparation – improved bond between blasted part and coating application while also revealing any surface defects.
- Corrosion removal – corrosion is removed during shot blasting of metals.
- Impurities removal – mill scale and oil is removed by shot blasting.
- Eco friendly – Shot blasting requires no chemical or acids.
- Economic – Shot is reusable and delivers high production turnover












